Piso en el Cerrado del Águila
Urb. Cerros del Águila, 29649 Mijas, Málaga, EspañaLo esencial
- Operación: En venta
- Tipo de Inmueble: Pisos
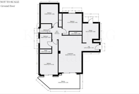
- Tamaño: 120 m²
- Dormitorios: 3
- Baños : 2
- Orientación: Sur, Oeste
- Características: Aire acondicionado, Armarios empotrados, Ascensor, Terraza, Jardín, Garaje, Piscina, Vistas al mar
- Precio Comunidad: 148€
- Localidad: Cerrado del Aguila
- Fecha Agregada : Agregado hace 7 meses
Descripción
-
Descripción:
Precioso apartamento amplio y muy luminoso de tres dormitorios y dos baños. Cocina moderna y equipada, cuenta con un lavadero. El amplio y luminoso salón lleva a una terraza donde disfrutar de las vistas o relajarse. Amplios dormitorios (uno de ellos en suite), dos baños, uno completo y otro con ducha.
El apartamento dispone de plaza privada de parking (en el recinto)
La comunidad es tranquila y dispone de amplias zonas verdes, piscina de adultos y otra de niños, abiertas todo el año. Cerca del complejo hay instalaciones adicionales de golf y deportivas en la casa club del complejo, a 6 minutos a pie.Cerrado del Águila es una zona tranquila pero cerca de la ciudad, a varios minutos en coche de Fuengirola, al lado tenemos el club de golf donde pueden encontrar restaurante, cafetería, gimnasio, golf, pistas de tenis/paddle; a tan solo unos minutos en coche del centro comercial Miramar, Fuengirola y la playa. A unos 6 minutos en coche pueden encontrar La Cala de Mijas y a 5 min el centro comercial Miramar El aeropuerto de Málaga se encuentra a unos 25
Mostrar toda la descripción
min en coche.
Es una propiedad ideal para familias o parejas que buscan una propiedad espaciosa.
